1694 ചതുരശ്രയടിയിൽ ആരും കൊതിക്കും 3BHK ഭവനം
പഴമയുടെ മൂല്യങ്ങൾ മുറുകെ പിടിക്കാൻ ആഗ്രഹിക്കുന്ന ഒത്തിരി ആളുകൾ ഇന്നും നമുക്കിടയിലുണ്ട്. പരമ്പരാഗതരീതിയിൽ ഒരു ഭവനം പണിയുന്നതിന് ഇഷ്ടപ്പെടുന്നവരാണിവർ. അവർക്ക് വേണ്ടിയാണ് ഇത് അവതരിപ്പിക്കുന്നത്. 1694 ചതുരശ്രയടിയിലാണ് ഈ ഭവനം ഡിസൈൻ ചെയ്തിരിക്കുന്നത്.ഇതിന്റെ ഏറ്റവും വലിയ പ്രത്യേകത പരമ്പരാഗതവും ആധുനികവുമായ ശൈലികൾ ഒത്തുചേർത്താണ് ഇത് തയ്യാറാക്കിയിരിക്കുന്നത്.
Advertisement
മുകളിൽ ചരിഞ്ഞ മേൽക്കൂരയിൽ ഡോർമർ വിൻഡോകൾ അതിമനോഹരമായി സ്ഥാപിച്ചിരിക്കുന്നത് ഇതിന്റെ മറ്റൊരു സവിശേഷതയാണ്.വീടിന് കൂടുതൽ കുളിർമയും ഇതുവഴി ലഭ്യമാകുന്നു.

ധാരാളം തൂണുകൾ ഉപയോഗിച്ചിട്ടുള്ളതിനാൽ വീടിനു കൂടുതൽ പിന്തുണയും സൗന്ദര്യവും ഇതു നൽകുന്നു. എൽ ജി കൺസ്ട്രക്ഷൻസാണ് ഈ മനോഹര ഭവനം ഡിസൈൻ ചെയ്തിരിക്കുന്നത്. ഏകദേശം 33 ലക്ഷം രൂപയാണ് ഇതിന്റെ ചിലവ്.

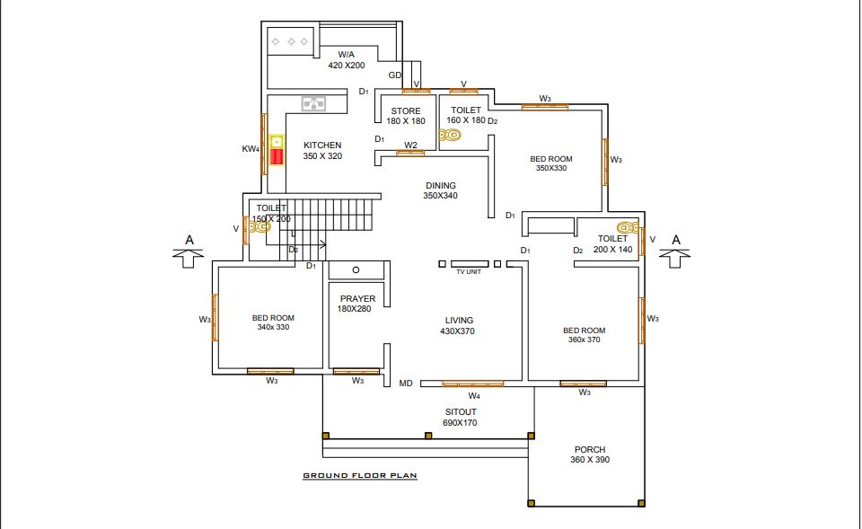
താഴെപ്പറയുന്നവയാണ് ഈ വീട്ടിലുള്ള മറ്റ് സൗകര്യങ്ങൾ.
കാർ പോർച്ച്
സിറ്റൗട്ട്
ലിവിംഗ് റൂം
ഹാൾ
ഡൈനിംഗ് ഏരിയ
ബെഡ്റൂം-3 (അറ്റാച്ച്ഡ് ബാത്റൂം-2)
കോമൺ ബാത്ത്റൂം-1 സ്റ്റോർ റൂം
അടുക്കള
വർക്ക് ഏരിയ
സ്റ്റെയർ റൂം
ഇതോടൊപ്പം ഈ ഭവനത്തിന്റെ പ്ലാനും ഉൾപ്പെടുത്തിയിട്ടുണ്ട്.
LJ CONSTRUCTIONS
ENGINEERS & CONTRACTORS
Chemperi, Kannur
[email protected]
Mob : 9562994547, 9539329308