കുറഞ്ഞ ചിലവിൽ മനോഹരമായ വീട്
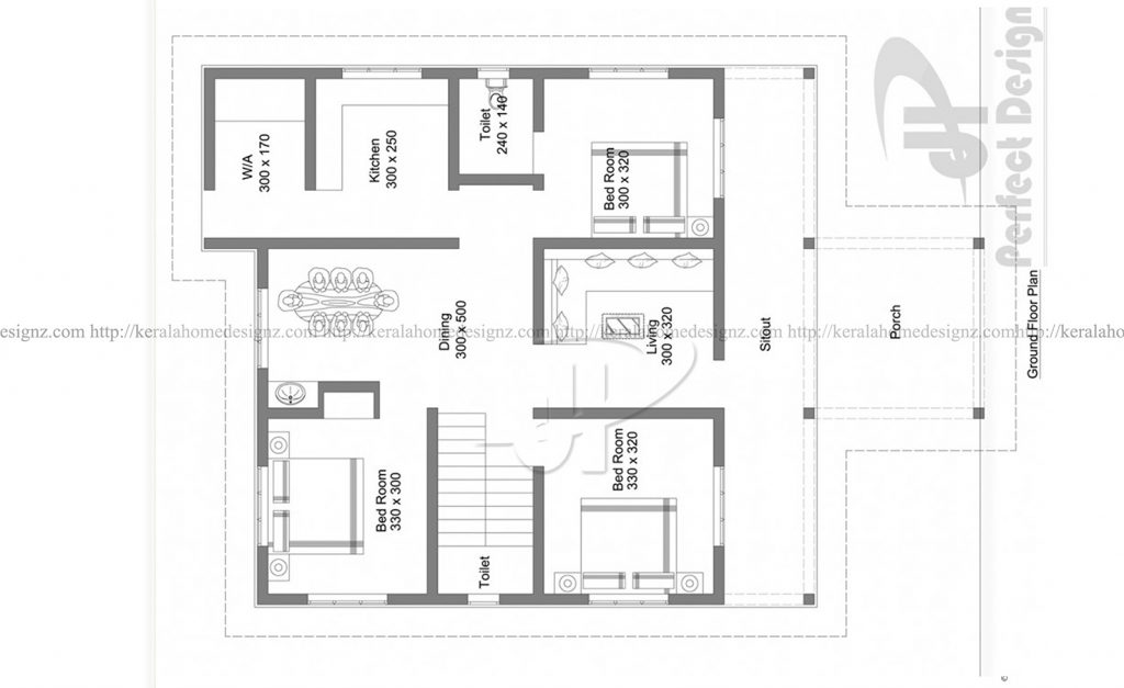
വീട് എല്ലാവരുടെയും ഒരു ജീവിതകാല സ്വപനം ആണ്.ട്രെൻഡിങ് കേരളയുടെ ഹോം കാറ്റഗറിയിൽ 1194 sqr ഫീറ്റിൽ പണി കഴിച്ച ഒരു ബഡ്ജറ്റ് ഭവനം ആണ് പരിചയപ്പെടുത്തുന്നത്.പ്ലാനും ഡിസൈനറുടെ കോൺടാക്ട് നമ്പറും ഉൾപ്പെടുത്തിയിട്ടുണ്ട്.ഈ മനോഹര ഭവനം ഡിസൈൻ ചെയ്തിരിക്കുന്നത് ഡിസൈനർ മുഹമ്മദ്കുട്ടി ആണ്.ഈ മനോഹര ഒറ്റനില ഭവനത്തിൽ മൂന്ന് കിടപ്പുമുറികൾ ഉണ്ട്.അതിൽ ഒരെണ്ണം ബാത്ത് റൂം അറ്റാച്ഡ് ആണ്.കൂടാതെ പോർച്ച്, സിറ്റൌട്ട്, ലിവിംഗ് റൂം, ഡൈനിങ്ങ്, അടുക്കള, വര്ക്ക് എരിയ എന്നിവ ഉള്പ്പെടുന്നതാണ് ഈ വീട്.
Advertisement

ചിലവ് കുറഞ്ഞ രീതിയിൽ ആണ് നിർമാണം എങ്കിലും ഇന്റീരിയറിലും ആവശ്യകതകളിലും ഒട്ടും വിട്ടുവീഴ്ച ചെയ്തിട്ടില്ല.വളരെ വിശാലമായ അടുക്കള ഡൈനിങ്ങ് റൂം ഒക്കെ ഈ വീടിന്റെ പ്രതേകത ആണ്.കൂടുതൽ വിവരങ്ങളും പ്ലാനും ചുവടെ നൽകുന്നു.

Car porch
Sit out
Living room
Dining hall
Bedrooms : 3
Toilet attached : 1
Common bath :1
Kitchen
Work area
ഡിസൈനർ :
മുഹമ്മദ് കുട്ടി
പെര്ഫെക്റ്റ് ഡിസൈന്
റിയാദ്
Mail: [email protected]
Ph: 00966594236142
കടപ്പാട് : പെര്ഫെക്റ്റ് ഡിസൈന്
ഇഷ്ടമായാൽ ഇതുപോലുള്ള പോസ്റ്റുകൾ തുടർന്നും ലഭിക്കുവാൻ താഴെ നൽകിയിട്ടുള്ള ഷെയർ ബട്ടൻ അമർത്തുക.