1119 ചതുരശ്ര അടിയിൽ അടിപൊളി ഒരു വീട് പണിയണോ?
എല്ലാ സൗകര്യങ്ങളുമുള്ള ചിലവ് കുറഞ്ഞ ഒരു ഭവനം എല്ലാവരുടെയും ആഗ്രഹമായിരിക്കും. എങ്കിൽ അത്തമൊരു വീടിന്റെ പ്ലാനാണ് ഇവിടെ അവതരിപ്പിക്കുന്നത്. വീടിന്റെ മുൻഭാഗത്ത് തന്നെ വച്ചിരിക്കുന്ന ചാരനിറത്തിലുള്ള ടൈലുകൾ കൂടുതൽ ഭംഗിയും ആകർഷണവും നൽകുന്നു. കുറഞ്ഞ ചിലവിൽ നിർമ്മിച്ചിരിക്കുന്ന ഈ ഒറ്റനില ഭവനത്തിന് കൂടുതൽ മനോഹാരിതയേകാൻ ഒരു പൂന്തോട്ടവും സജ്ജീകരിച്ചിട്ടുണ്ട്.
Advertisement
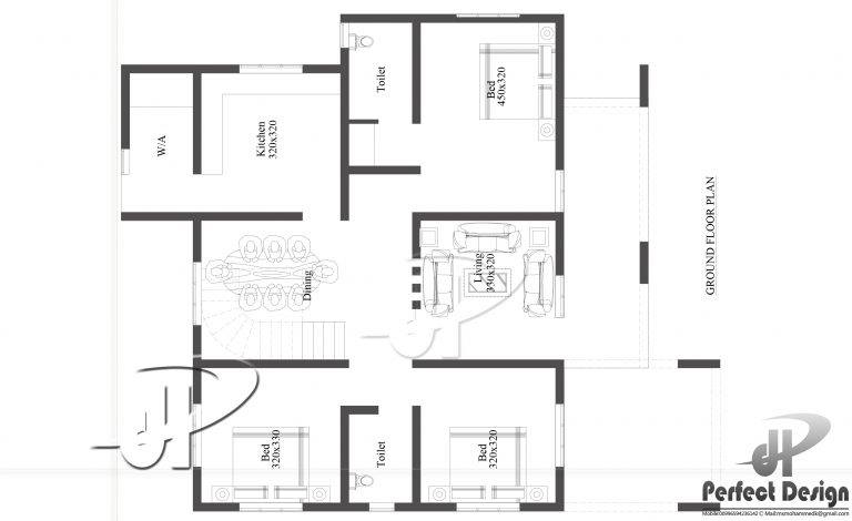
രണ്ടു ഭാഗങ്ങളായാണ് ഈ വീട് ഡിസൈൻ ചെയ്തിരിക്കുന്നത്. ഒന്ന് കുടുംബത്തിന്റെ വിനോദത്തിനുവേണ്ടിയും മറ്റൊന്ന് ലിവിങ് ഏരിയയുമാണ്. മതിലുകൾക്കും തൂണുകൾക്കും ഒരു സവിശേഷതയുണ്ട്.ക്യൂബോയ്ഡൽ മാതൃകയാണ് സ്വീകരിച്ചിരിക്കുന്നത്. മുറികൾക്ക് കൂടുതൽ സ്ഥലം തോന്നിക്കുന്നതിനും, സമാധാനപരമായ അന്തരീക്ഷം നിലനിർത്തുന്നതിനും വെള്ളനിറമാണ് ഉപയോഗിച്ചിരിക്കുന്നത്. 1119 ചതുരശ്ര അടിയിൽ ഡിസൈൻ ചെയ്തിരിക്കുന്ന ഈ വീടിനു കാർപോർച്ചും ഉൾപ്പെടുത്തിയിട്ടുണ്ട്.
ലിവിംഗ് റൂം
ഡൈനിംഗ് ഏരിയ അടുക്കള
വർക്ക് ഏരിയ
സ്റ്റെയർ റൂം
ബെഡ്റൂം 3 അറ്റാച്ചുചെയ്ത ബാത്ത്റൂം 1
കോമൺ ബാത്ത്റൂം 1
മേൽപ്പറഞ്ഞവയാണ് ഇതിലെ മറ്റു സൗകര്യങ്ങൾ.
ഏറ്റവും ഉപയോഗപ്രദമായ രീതിയിലാണ് റൂമുകൾ എല്ലാം ഡിസൈൻ ചെയ്തിരിക്കുന്നത്. വിശാലമായി ആറു പേർക്ക് ഇരിക്കാവുന്ന ഡൈനിങ് ടേബിളും ഇവിടെ തയ്യാറാക്കിയിട്ടുണ്ട്. കണ്ണിന് കൂടുതൽ കുളിർമ നൽകുന്നതിനായി ഇളം നിറങ്ങളാണ് ചുമരിൽ ഉപയോഗിച്ചിരിക്കുന്നത്. കൂടുതൽ വിശേഷങ്ങൾക്കായി താഴെ നൽകിയിരിക്കുന്ന വീഡിയോ കാണുക

Courtesy: Perfect Design