ഏറ്റവും കൂടുതല് ആളുകള് പ്ലാനും കോണ്ടാക്റ്റ് ഡീറ്റെയ്ല്സും ആവശ്യപ്പെട്ട വീട്
ആദ്യ നോട്ടത്തില് തന്നെ ഏവരുടേയും മനസ്സ് ഇളക്കിയ കിടിലന് വീട്. ഏറ്റവും കൂടുതല് ആളുകള് പ്ലാനും കോണ്ടാക്റ്റ് ഡീറ്റെയ്ല്സും ആവശ്യപ്പെട്ട വീടും ഇത് തന്നെ. പ്രശസ്ഥ ഡിസൈനറായ മുഹമ്മദ് കുട്ടിയാണ് ഈ പ്ലാന് രൂപകല്പ്പന ചെയ്തിരിയ്ക്കുന്നത്.
Advertisement
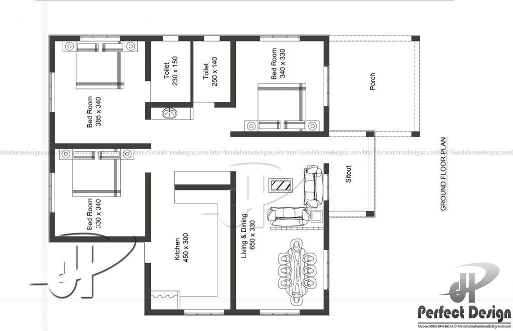
1097 ചതുരശ്ര അടിയിൽ (102 ചതുരശ്ര മീറ്റർ) ആണ് ഈ മനോഹരമായ ഒറ്റ നില മോഡേണ് വീടിന്റെ നിര്മ്മാണ്ആം. വീടിന്റെ നിര്മ്മി മുഴുവന് ആധുനിക വീടുകളെ വെല്ലുന്ന രീതിയില് ആണെങ്കിലും നിര്മ്മാണ ചെലവ് കുറവ് തന്നെ. ഈ വീട്ടിൽ പോർച്ച്, സാറ്റ്ഔട്ട്, 3 കിടപ്പുമുറികൾ, 1 അറ്റാച്ച് ചെയ്ത ബാത്ത് റൂമുകള്, ഒരു മോമണ് ബാത്ത് റൂം, ലിവിംഗ് റൂം, അടുക്കള എന്നിവ ഉള്പ്പെടുന്നു.

ഇന്റീരിയർ ഡിസൈനിംഗും വളരെ മികച്ചതാക്കിയിരിയ്ക്കുന്നു. ആരും കൊതിയ്ക്കുന്ന രീതിയില് തന്നെയാണ് നിര്മ്മാണം പൂര്ത്തീകരിച്ച വീടിന്റെ ലുക്ക് . ലിവിംഗ് റൂമും ഡൈനിംഗും വളരെ നന്നായി രൂപകൽപ്പന ചെയ്തിട്ടുണ്ട്. അടുക്കള വളരെ ഭംഗിയുള്ളതും വിശാലമമ്യതുണ്. ഏറ്റവും പുതിയ ഇന്റീരിയർ ഡിസൈനുകളിൽ ആണ് വീട് രൂപകൽപ്പന ചെയ്തിട്ടുള്ളത്.
വീടിന്റെ നിര്മ്മാണം ഒറ്റ നോട്ടത്തില്.
Car porch
Sit out
Living room
Dining hall
3-Bedrooms
Toilet attached
Common toilet
Kitchen

ഏറ്റവും പുതിയ ഇന്റീരിയർ ഡിസൈനുകൾക്കായി രൂപകൽപ്പന ചെയ്തിരിക്കുകയാണ് ഡിസൈനര് ഇവിടെ. കൂടുതൽ വിവരങ്ങൾ ഡിസൈനറുമായി ബന്ധപ്പെടുക.
മുഹമ്മദ് കുട്ടി
പെര്ഫെക്റ്റ് ഡിസൈന്
റിയാദ്
Mail: [email protected]
Ph: 00966594236142
കടപ്പാട് : പെര്ഫെക്റ്റ് ഡിസൈന്