നാല് സെന്റിൽ പതിനേഴ് ലക്ഷം രൂപയ്ക് നിർമിച്ച വീട്
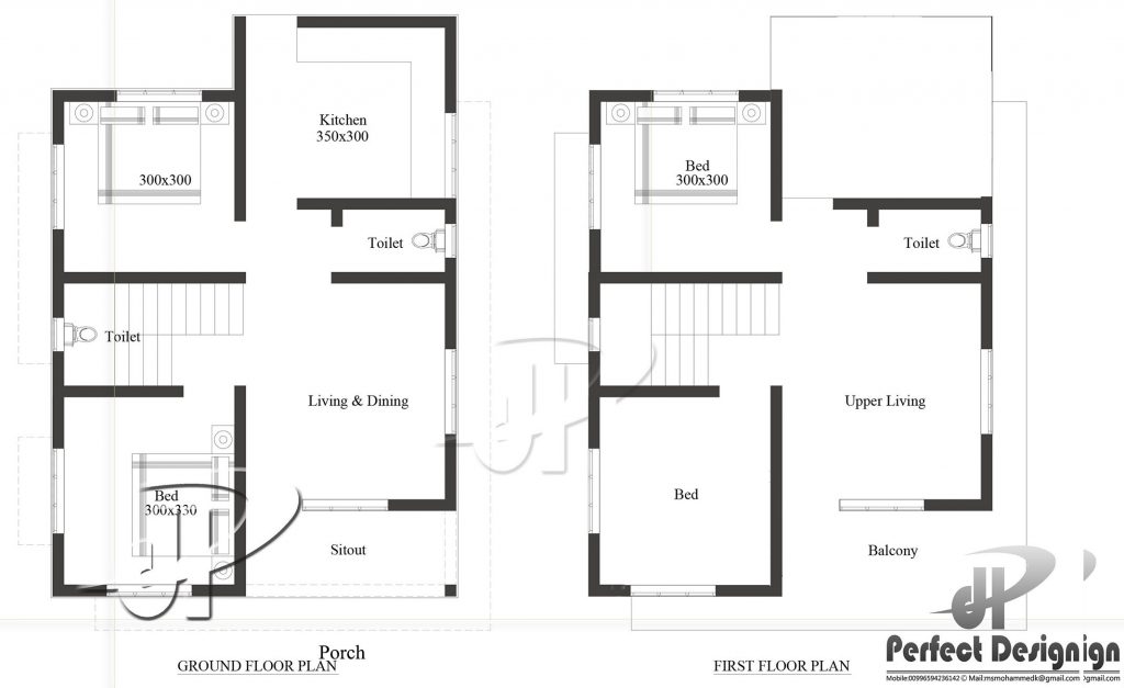
കോഴിക്കോട് നിർമിച്ച ഒരു ചെറിയ വീട്.1215 square feet വരുന്ന ഈ വീട് പതിനേഴു ലക്ഷം രൂപക്ക് നാല് സെന്ററിൽ ആണ് നിർമിച്ചത്.മൂന്ന് ബെഡ്റൂമുകൾ ഉള്ള വീട്ടിൽ റൂമുകളോട് ചേർന്ന് ബാത്റൂമുകളും ഉണ്ട്.കൂടാതെ ഒരു കോമൺ ബാത്റൂമും ഉൾപ്പെടുന്നു.മോഡേൺ ആർകിടെക്കിൽ നിമിച്ച ഈ വീട്ടിൽ നല്ല സ്പേസ് ഉണ്ട്.കൂടുതൽ വിവരങ്ങൾ താഴെ ചേർക്കുന്നു.
Advertisement

ഗ്രൗണ്ട് ഫ്ലോർ 732 Sq.Ft)
- Sit out
- Living room
- Dining Hall
- Bedrooms : 2
- Common toilet 1
- Kitchen
- Staircase
ഫസ്റ്റ് ഫ്ലോർ 484 Sq.Ft
- Balcony
- Upper living
- Bedrooms
- Common toilet
ഡിസൈൻ :

Perfect Design
Riyadh – K.S.A
Mail :[email protected]
Mob:0096659423614
The copyright of the image and data used in this post will belong to their respective owners.